Нов комплекс без такса поддръжка на първа линия море в Крайморие

 Бургас, Kafka Seaside Village

809 760 €

540м21500 €/м2

4 стаи, 3 спални 2 тераси, 4 бани
Построен 2026
Необзаведен
с паркомясто
4
Информация за имота
  • ID:36005
  • град:Крайморие
  • Комплекс:Kafka Seaside Village
  • Построен:2026
  • Обзаведен:Необзаведен
  • Разстояние до море:1-ва линия
  • Канализация:Да
  • Етаж:3
  • Конструкция:Тухла
  • Отопление:Електричество
  • Паркинг:с паркомясто
  • Охрана:Не
  • Басейн:Не
Описание

Нов комплекс на първа линия море от самостоятелни къщи и къщи тип таунхаус. Комплексът съчетава удобството на съвременния начин на живот с неповторимата връзка с природата. Разположен на първа линия до три красиви плажа, комплексът осигурява ексклузивен достъп до алеи за автомобили и пешеходци, предлагайки на обитателите идеалната среда за релаксация и удобство.

Всяка къща разполага с частен двор и две паркоместа, без допълнителни такси за обслужване. Осигурени са индивидуални партиди за ток и вода, а канализационната система е проектирана като самостоятелна с локална пречиствателна станция, което гарантира екологична устойчивост и оптимална ефективност.

Къщите в комплекса са разделени на три типа според тяхното местоположение:

  • Тип „А“ – разположени на първа линия до морето, предлагащи спиращи дъха гледки.
  • Тип „Б“ – разположени в средната част на имота, осигуряващи баланс между удобство и уединение.
  • Тип „В“ – редови къщи, разположени в зоната, най-близка до улицата, с лесен достъп.

Цените са между 1500 и 2000 евро без ДДС, като най-високата цена е за първа линия море. Разпределението на сградите е направено с пълно спазване на всички нормативни изисквания за отстояния и регулации.

Архитектурната визия на комплекса е съвременна, вдъхновена от модерните тенденции в дизайна. Белите фасади, елегантните графитени акценти и стъклените парапети създават стилна и ненатрапчива естетика. Използваните качествени материали и фасадни елементи повишават комфорта на обитаване, докато естествените цветови тонове позволяват хармонично вписване на сградите в заобикалящата природа.

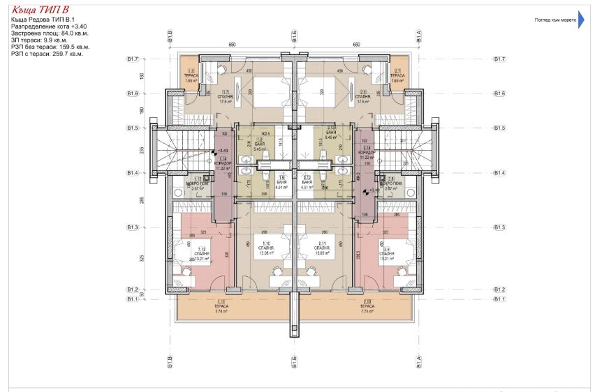
Предлагаме къща тип "В" - В 904

Спални: 3

РЗП: 342.22 кв. м.

Обща площ: 539.84 кв. м.

Партер: 128.06 кв. м.

Ет. 1: 168.8 кв. м.

Покривна тераса: 191.84 кв. м.

Постройките от тип В се състоят от 2, 3 или 4 секции, като всяка секция представлява самостоятелно жилище на два етажа с частичен трети етаж за достъп до покривната тераса. 

На първия етаж се намират входно антре, складово и санитарно помещение, както и дневна с трапезария 

и кухня, с излаз към покрита тераса и вътрешен двор. 

Вторият етаж включва три спални с бани, две от които

споделят тераса към двора, а крайните секции имат допълнителна тераса към алеята. 

Третият етаж осигурява достъп до покривната тераса.

Къщите се издават по БДС, без такса поддръжка. Ще имате възможност да модифицирате вашия двор по индивидуален проект.

Крайната дата на етап едно - 10.12.2026 г.

Този комплекс е идеалното място за онези, които търсят изискано и спокойно убежище на брега на морето.

Оферта № 36005

Агенцията съдейства за отпускане на банков кредит

Разположение на картата